Pada postingan sebelumnya Rumah Idamanku telah memberikan contoh desain denah rumah 7 x 20 . Dan kali ini menyambunag artikel sebelumnya , Untuk lahan yang lebih luas tentunya ana akan lebih leluasa bermain - main dengan desain ruangan anda . Beberapa desain denah rumah dengan ukuran 10 x 15 yang akan memberikan inspirasi bagi anda semua .
Sebenarnya dengan luas lahan dengan ukuran di atas kita dapat membangun sebuah rumah yang cukup indah walaupun dengan satu lantai . Namun untuk lebih terlihat elegant ada baiknya anda membuat denah rumah dua lantai . Selain nilai infestasi yang tinggi juga akan menaikkan citra anda di mata para pemain property . Dengan memiliki rumah dua lantai juga anda akan bebas berkreasi dan berimajinasi menciptakan keunikan - keunikan pada tampilan interior atau eksterior nantinya .
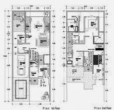
Untuk hasil maksimal jangan lupa menggunakan jasa para ahli bidang property dan dengan pasangan anda tentunya . Sebagai inspirasi untuk anda , di sini Rumah Idamanku akan berbagi dengan menampilkan beberapa desain denah rumah lantai dua dengan ukuran +/- 10 x 15. Simak gambar di bawah ini dengan seksama .,
Itulah beberapa contoh desain denah rumah ukuran 10 x 15 yang bisa anda jadikan inspirasi untuk rumah idaman anda..
Sebenarnya dengan luas lahan dengan ukuran di atas kita dapat membangun sebuah rumah yang cukup indah walaupun dengan satu lantai . Namun untuk lebih terlihat elegant ada baiknya anda membuat denah rumah dua lantai . Selain nilai infestasi yang tinggi juga akan menaikkan citra anda di mata para pemain property . Dengan memiliki rumah dua lantai juga anda akan bebas berkreasi dan berimajinasi menciptakan keunikan - keunikan pada tampilan interior atau eksterior nantinya .
Untuk hasil maksimal jangan lupa menggunakan jasa para ahli bidang property dan dengan pasangan anda tentunya . Sebagai inspirasi untuk anda , di sini Rumah Idamanku akan berbagi dengan menampilkan beberapa desain denah rumah lantai dua dengan ukuran +/- 10 x 15. Simak gambar di bawah ini dengan seksama .,




No comments:
Post a Comment
Apabila anda merasa artikel ini bermanfaat silahkan berkomentar yang sopan dan jangan melakukan spam.Hargailah karya orang lain dengan tidak melakukan copas . Terima Kasih...